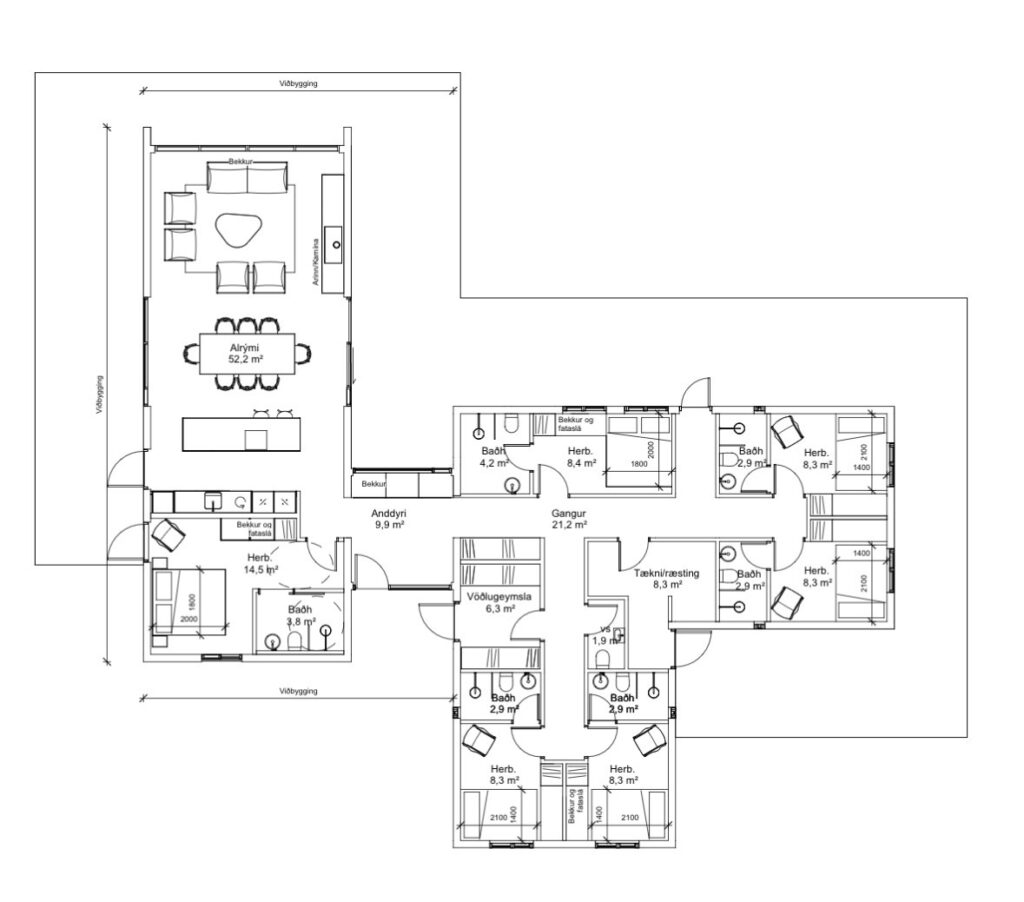
Ertu að fá´nn sló á þráðinn til Jón Þórs Júlíússonar leigutaka Svalbarðsáar til að taka stöðuna á hvernig gengi að koma upp nýrri viðbyggingu sem verið er að gera við veiðihúsið við Svalbarðsá. Að sögn Jóns Þórs þá gengur allt eftir áætlun og og mun nýja álman vera komin í gagnið fyrir veiðitímabilið. Verður þetta mikill akkur og aukin þægindi fyrir veiðimenn að fá aukið rými við ánna, sem mun gera dvöl þeirra enn ánægjulegri við ánna.



Eldri byggingin breytist þannig að það verða fimm með herbegi með sérbaði. Gengið verður inn í húsið milli álmanna og gerð hefur verið vöðlugeymsla þar sem gamla eldhúsið var. Í nýju ámunni er eitt nýtt herbegi með sérbaði og stórt alrými með eldhúsi sem snýr út að ánni.